Start a project

HPA in the Country

19th December 2024

A Country House Refurbishment

Our London based developer client, who is also a contractor, asked us to work with him to restore and carefully update a tired early 18” Century listed property in Arundel, West Sussex, to create a characterful and comfortable home to relocate his young family to. 

The Old Wheatsheaf is situated in one of the earliest and most prestigious residential streets laid out in Arundel and was originally built as a public house, with large, open rooms on the ground floor and cellular accommodation above. Converted to a residence in the 1930’s, it then underwent drastic alteration in the 1970’s. The internal spaces were fragmented by badly laid out partitions and lost their original scale and proportion. The original fabric and architectural detailing were removed or obscured.

Street View Before Restoration
View from Garden Before Restoration

Our design was developed following a thorough study of the surviving original fabric and sought to strip back the greater part of the low-quality 20th c alterations to reveal and restore the original elements and complement them.

Building Fabric Study – Ground Floor

The design restores the original proportions to the main rooms and extends the ground floor living spaces into a family dining room extension along the back elevation, with large, glazed doors leading to a raised terrace with commanding views and stairs down to the re-landscaped garden below.

A new internal staircase replaces the 1970’s stair in a different configuration that optimises the layout of the upper floors’ bedrooms and bathrooms.

A second staircase leads from the ground floor kitchen to the cellar, with a utility room and wine cellar inserted into its vaulted rooms and niches, along with a gym/children’s playroom and a separate guest annex accessed from the garden via a secret side passage from the street.

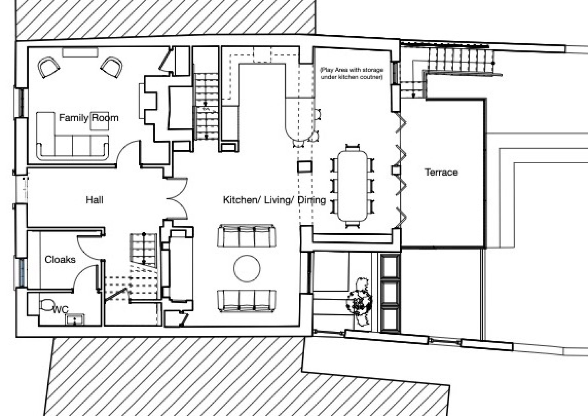
Proposed Layout – Ground Floor
Stair to cellar from kitchen

Bookcases and shelves are discretely integrated into the design, framing a window seat in the living room and forming screening between the kitchen and living room.

Living room

The interior palette is restrained in a pared down style to highlight and complement the restored original materials and textures. Linings and paint were removed from the original Elm frame timbers, which were then sandblasted and treated to bring out their texture and colour. We worked closely with our client on the procurement of the interior finishes and selection of materials and colours, to realise their vision for the house.

Kitchen
Views of rear extension
Views of rear extension

Large format stone flags with a soft, worn texture are used to tile the ground floor living rooms and kitchen.

New Main Staircase
Staircase to Cellar

Surviving remnants of the original chalk and brick walls are revealed and restored, making lovely backdrops to some of the rooms and the staircase. format stone flags with a soft, worn texture are used to tile the ground floor living rooms and kitchen.

Cellar Vaults with Wine Racks

Reclaimed oak floorboards were used in the bathrooms to overlay the uneven original timber floorboards whilst keeping them intact.

Reclaimed Teak Flooring in Master Bathroom
Reclaimed Teak Flooring in Kids’ Bathroom

A separate annex is carved out of the cavernous cellar, for guests’ use and holiday lets, accessed independently from the garden, designed to evoke a Mediterranean mood. The original chalk walls and vaults are restored and white-washed. The floors are tiled in warm limestone large format tiles. Large openings with French doors to the garden make for an airy feeling and bring the garden into the annex.

Externally, new windows were added to the back elevation, and, with the new extension, sought to balance the altered rear elevation whilst making it distinctive.

An existing garden shed is restored and partially reconstructed to provide a home-office and store in the garden.

Annex Living Room

We worked with our client, director of Abimara Ltd, and his tradesmen, whose skills and local knowledge were key in the realisation of the design, working skilfully with the twisted timber frame and the uneven floors, walls and ceilings, to provide the character that the owner was striving for, whilst sympathetically modernising the house for the family to enjoy for the years to come.

View from Garden After Restoration

Related Articles