Start a project

Penthouse Alterations, Kensington and Chelsea

Substantial but sensitive alterations to Grade II listed penthouse flat for an art collector client.

Updating and upgrading the listed apartment

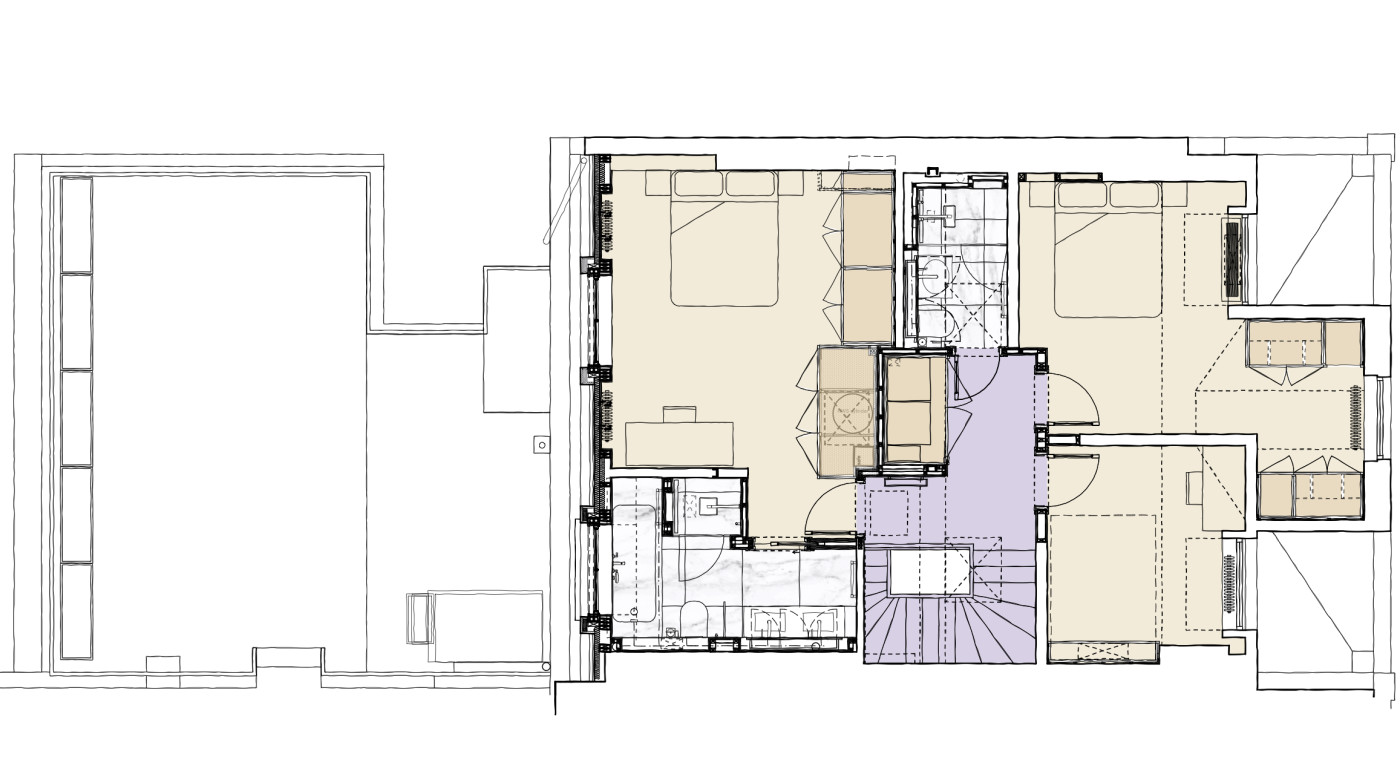
This Penthouse maisonette forms part of a Grade II Listed grand house designed by the architect J. J. Stevenson in the 1880’s. The Penthouse maisonette came into being in 1948 when the house was divided into flats.

Our project was for the substantial but sensitive updating, upgrading and enhancement of the fabric and amenities of the maisonette and the transformation of the existing layout into an open, contemporary, stripped-back interior that act as a neutral backdrop to our client’s extensive collection of eighteenth century art, books and furniture.

Our work included rigorous historic research into the development and history of the building in order to preserve elements belonging to the original footprint and interior whilst at the same time removing and adjusting non-original walls and features in order to create the desired spaces and effect.

Enhancing the internal and external spaces

The external alterations included the reconstruction of an existing mansard roof to an adjusted profile that provided additional headroom and floor area in the attic floor. We also reconfigured and design the landscaping of a third floor roof terrace to make better use of the precious outdoor space.

We saw this project through from inception to completion, obtaining a difficult and challenging planning permission and listed building consent for the internal and external reconstruction, alterations and enhancements.

architectural drawings

Location

The development is located in Kensington & Chelsea, West London.