Barrington Road Garden Level Extension, Crouch End
Transformation of an existing basement with rear and side extensions.
Location
Crouch End, London Borough of Haringey N8
Status
Completed
Use
Residential
Client
Private
 
    
       
    
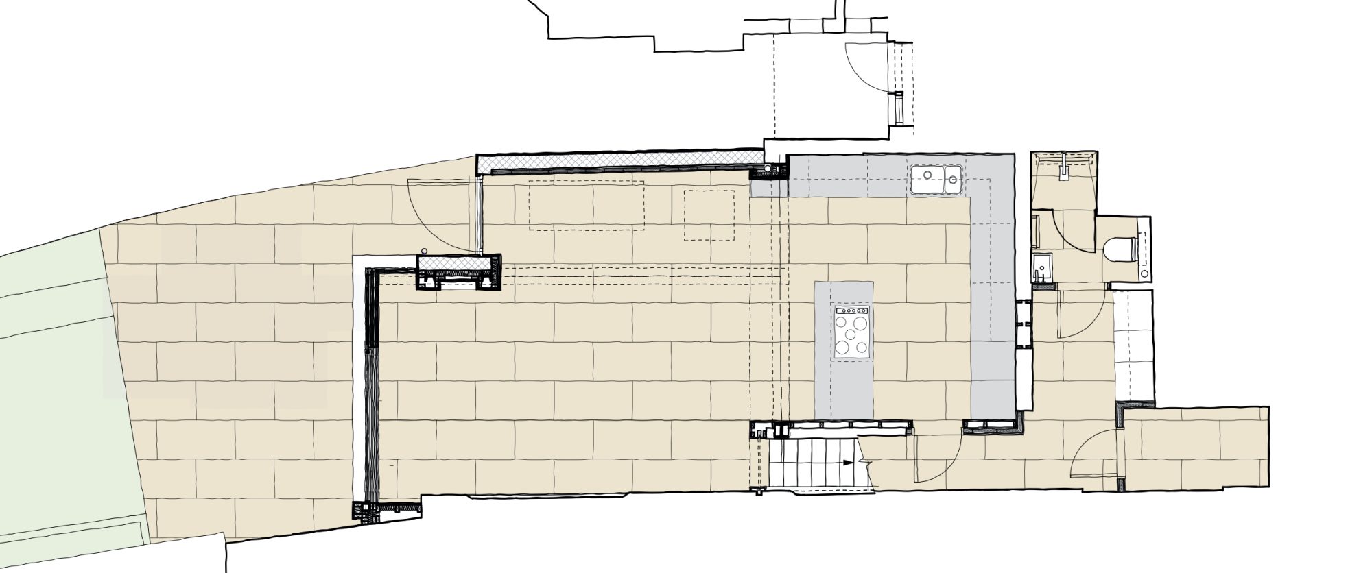
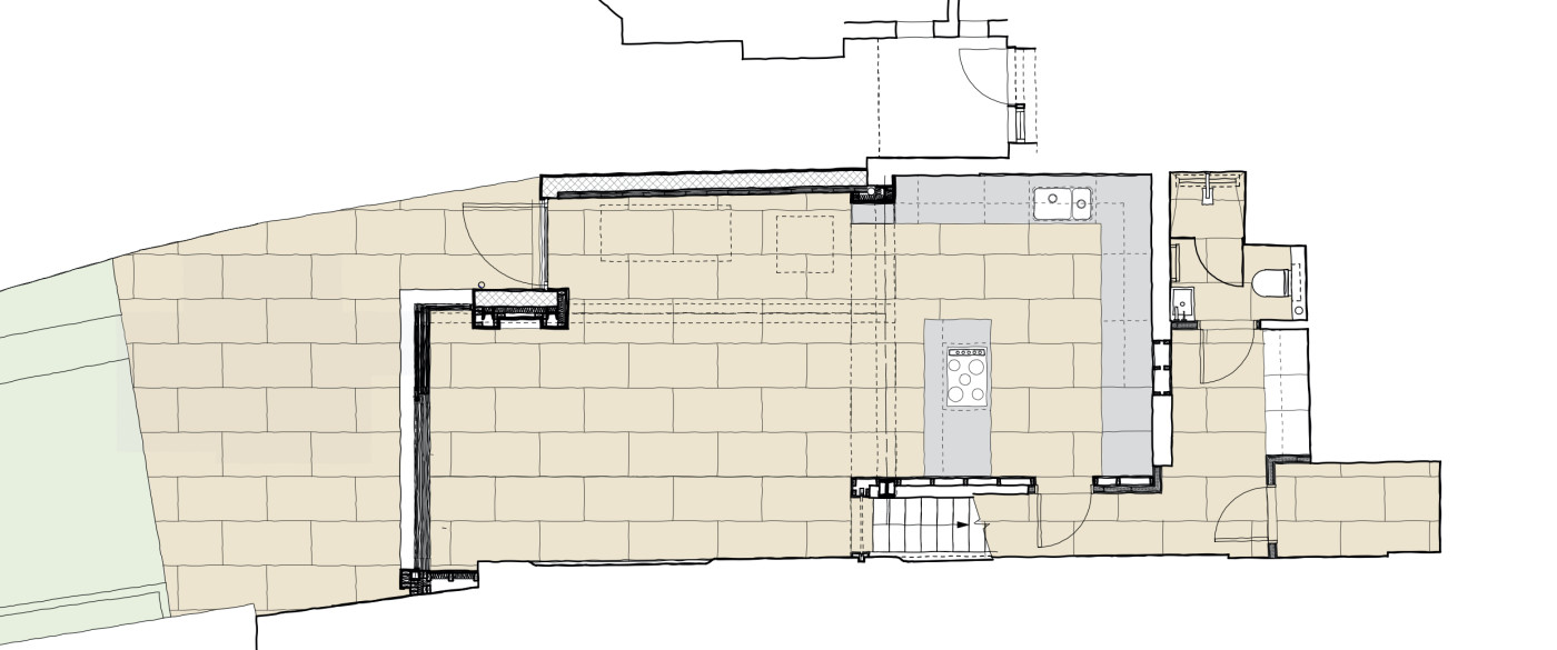
      Creating a new family space and connection to the rear garden
Our extension design in-filled a little used external side passage and extended the accommodation into the garden, with a minimally framed glass screen and triple sliding doors that serve the main part of the basement, and a large pivot door that terminates the side infill-extension.
 
    
       
    
       
    
       
    
       
    
       
    
       
    
      Full architectural service
Our services on this project started with concept sketches and followed on through planning, detailed design, procurement, and contract administration and project management through the construction stage.
 
    
      
                    Haines Phillips thoughtful/insightful design has completely transformed our home and the way we live/our lifestyle. Their invaluable guidance throughout the project has created a haven.   We are very pleased to have made the decision to extend the kitchen and listen to their advice on key areas
                                            
                                                            
                                    
            Client
 
    
       
    
       
    
       
    
       
    
       
    
       
    
       
    
       
    
      