Start a project

Barrington Road Garden Level Extension, Crouch End

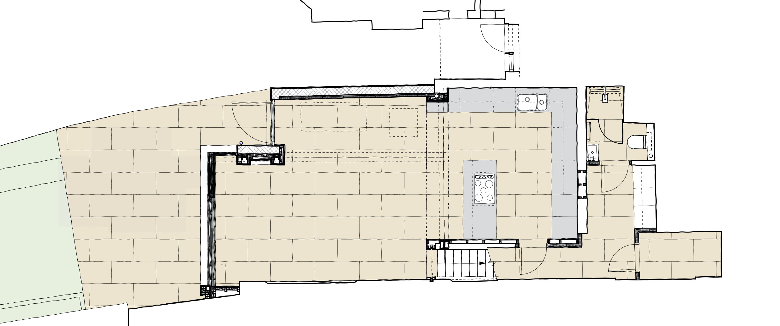
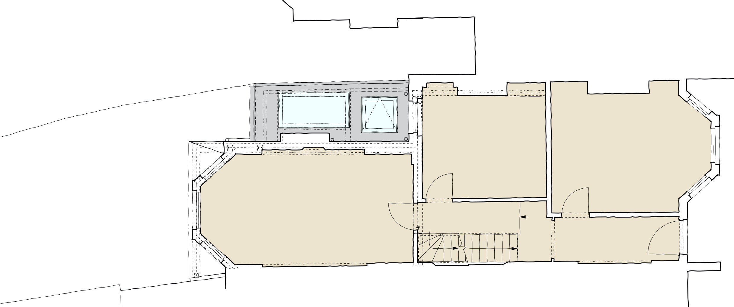
Transformation of an existing basement with rear and side extensions.

Rear elevation of period property with garden level extension and full-width glazing
Open-plan living space in garden level extension with sliding doors opening to rear garden in Crouch End

Creating a new family space and connection to the rear garden

Our extension design in-filled a little used external side passage and extended the accommodation into the garden, with a minimally framed glass screen and triple sliding doors that serve the main part of the basement, and a large pivot door that terminates the side infill-extension.

floor plans
Contemporary kitchen with island integrated into garden level extension design
Kitchen and dining area within garden level extension designed for family living
Garden-facing dining area bringing natural light into lower ground extension
Rear garden view showing contemporary garden level extension to period home in Crouch End
Dining space with minimal sliding glass doors creating direct connection to rear garden
Built-in joinery and shelving within reconfigured garden level living space
Victorian decorative timber arch and stair detail retained within Barrington Road Crouch End refurbishment

Full architectural service

Our services on this project started with concept sketches and followed on through planning, detailed design, procurement, and contract administration and project management through the construction stage.

Victorian decorative timber arch and stair detail retained within Barrington Road Crouch End refurbishment
Haines Phillips thoughtful/insightful design has completely transformed our home and the way we live/our lifestyle. Their invaluable guidance throughout the project has created a haven. We are very pleased to have made the decision to extend the kitchen and listen to their advice on key areas

Client

Location

The development is located in Crouch End, North London