Barrington Road Side Extension, Crouch End
Family living areas extended in to new double height side extension.
Location
London Borough of Haringey, London N8
Status
Completed
Use
Residential
Client
Private
Structural Engineer
Architectural Glazing







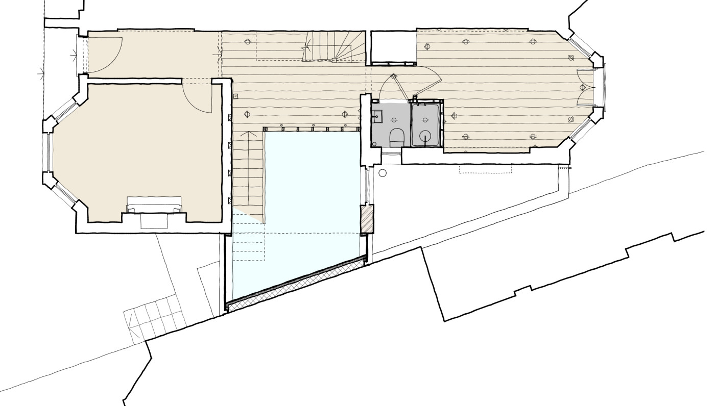
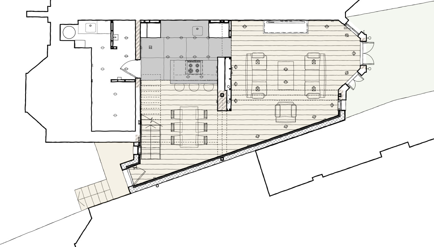
Generous living areas arranged around a new double height space
This space links the lower ground floor to the ground floor and allows for new, generous living spaces better connected with the rear garden. By carefully reorganising the internal layouts a new guest bedroom/study has been created on the ground floor, and a new WC and utility room in the basement.



Drawing light deep in to the basement
The infill extension is set back from the main frontage and takes the form of a glass box that sits slightly away from the adjoining house and allows light to enter deep in to the new basement accommodation.
Our services included detailed design and specification of the new kitchen, staircase, and lighting scheme.



