Start a project

Blandfield Road Renovation and Extension, Balham

Subtle transformation and extension of a Victorian terraced house.

A brief to transform and enhance our clients home

Haines Phillips were approached with a brief to transform the living spaces and upper floors of our clients two storey terraced house in Balham, south London within a limited budget.

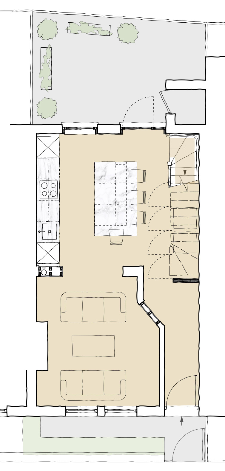
The existing ground floor kitchen and living spaces did not make best use of the space or connection with the rear garden patio. The bathroom and second bedroom were awkwardly arranged and made for a cramped and dark first floor layout.

architectural drawings

Creating light filled and functional spaces

On the ground floor the new layout allowed us to create a much more functional and open kitchen and living space that better suited our clients lifestyle. By reglazing the existing rear wall openings with new slimline aluminium units the whole space feels much lighter and the connection with the rear garden has been greatly enhanced.

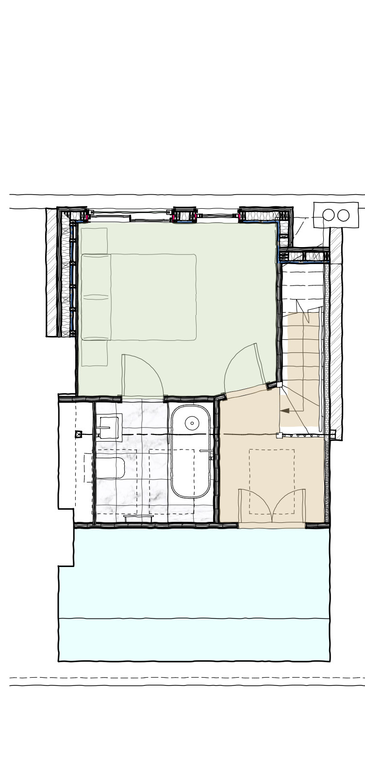
On the first floor we have created a new shower room and second bedroom whilst avoiding alterations to the front bedroom.

The stair landing is now flooded with light and leads on to the staircase up to a new loft extension containing the master bedroom suite, eaves storage and a stair landing that will also function as an informal study area.

Paul’s help has been invaluable throughout our project. As this was our first experience of renovation, we have relied heavily on his patient guidance to transform our ideas into reality. His proposal at the initial design stage to reverse the staircase was something that we hadn’t considered, but which has resulted in far better use of limited space. His calm and reassuring presence was then invaluable in navigating the inevitable twists and turns along the way. We are thrilled with the end result.

Client

Location

The development is located in Balham, South London