Start a project

Brunswick Gardens Renovation and Extension, Kensington and Chelsea

Extensive renovation, refurbishment and extension of a large family home.

Creating an elegant family home

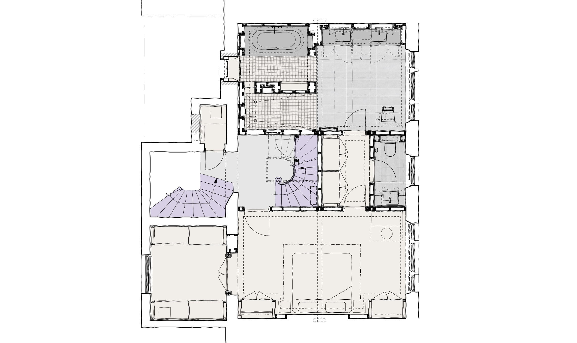
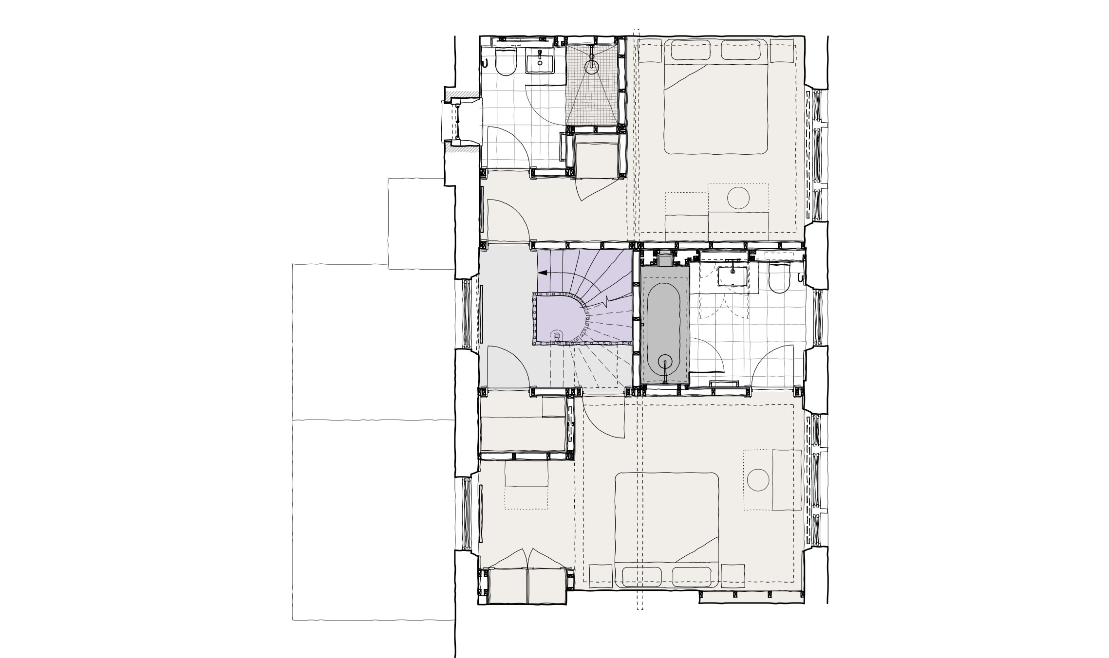
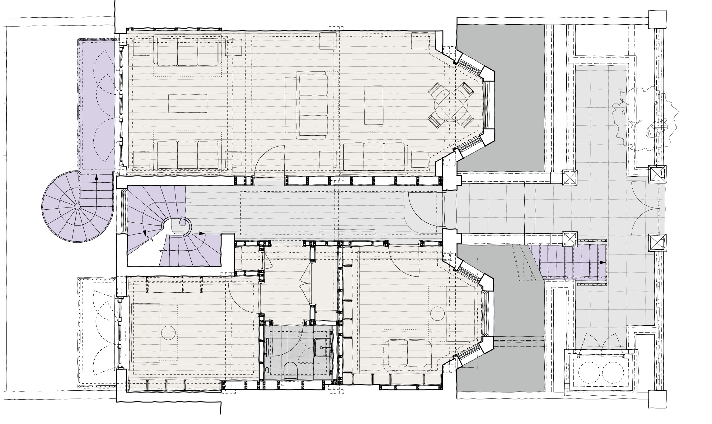
This imposing double-fronted Victorian house in Notting Hill Gate, Royal Borough of Kensington and Chelsea, underwent extensive renovation, remodeling and extending and was transformed from a down-at-heel state into an elegant and spacious family home.

The work included the digging down of the basement floor, an excavation below the front garden to extend the basement into ancillary ‘vault’ rooms and rear infill extensions at lower ground and ground floor levels.

The cellular basement rooms were converted into a light and spacious open-plan kitchen, dining and sitting room as part of the new internal refurbishment and fit-out following the complete demolition of the existing internal fabric.

Haines Phillips obtained the advantageous planning permission and has taken the project from concept design through to completion of construction and fitting out, delivering, with the design team and contractor, to an extremely tight and challenging programme.

A tight programme was set by our client which led into working collaboratively with the main contractor whereby a target budget figure was arrived at swiftly after the planning permission was granted, through negotiation with the main contractor, that informed the development of the detail design to some extent, and which was closely monitored by the quantity surveyor throughout the contract period.

architectural drawings

Period detailing mixed with contemporary style

Period detailing was re-instated to the primary fabric of the house including the new staircase, whilst the internal fit-out – bathrooms, kitchen, dressing rooms, fireplaces and joinery – was designed in a pared-down contemporary style.

Location

The development is located in Kensington & Chelsea, West London.