Start a project

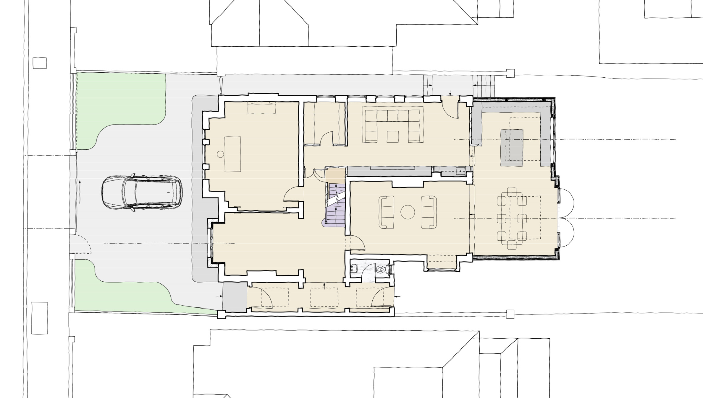
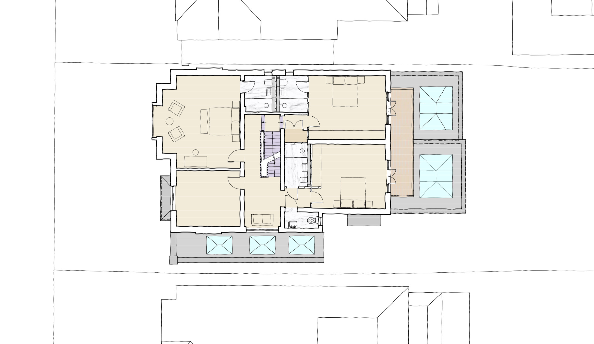
Charlbury Grove, Ealing

Large scale rear extensions and reorganisation of a 19th Century detached family home.

Contemporary alterations in a Conservation area context

The existing house was a large, detached 19th Century family home in the Mount Park Conservation Area.

Our proposals, for which we obtained planning consent and prepared detailed technical design information, were to reorganise and expand the house to better suit the contemporary lifestyle of our clients large family.

architectural drawings

Location

The development is located in Ealing, West London.