Start a project

Oakfield Road Amalgamation and Refurbishment, Crouch End

Amalgamation and transformation of an upper floor maisonette apartment and roof terrace.

Staircase and landing bringing light into the Oakfield Road refurbishment
Street view of the Oakfield Road building in Crouch End
Oakfield Road building under scaffold during refurbishment works

Amalgamating two flats to create a stunning maisonette apartment

This project was for the amalgamation and transformation of the first and second floor flats of an existing three storey building in Crouch End in to a beautiful, light filled maisonette apartment with a stunning roof terrace with views across London.

architectural drawings
Section drawing showing the stair and roof terrace at Oakfield Road
Staircase lit by rooflight within the Oakfield Road refurbishment

A dramatic double height circulation space

The apartment is arranged around a dramatic double height circulation space which visually connects the various rooms through the use of new internal windows and glazed doors. A refined, limited palette of high quality materials such as oak, ribbed glass, terrazzo and brass ironmongery have been used throughout the flat in order to create functional, orderly spaces that will serve as a backdrop to the clients artwork and furniture.

New structural elements and services have been carefully incorporated in to the new floors, partitions and bespoke fitted joinery elements.

Quietly luxurious with a contemporary feel

We worked closely with our clients to incorporate their ideas on materials, look, feel and detailing in to our design proposals for a for a quietly luxurious and luminous apartment which has both a contemporary feel as well as distinct references to mid-century modernism.

An example of the close collaboration to interpret and implement our clients design thinking are the ensuite bathroom and shower room spaces which are dramatically different to each other.

Kitchen

The kitchen is fully bespoke with the cabinetry in birch ply, fronts in a combination of rich oak and light grey vinyl with terrazzo worktops and splashbacks.

Light comes in from three sides, the rebuilt mansard sash window with a new custom window seat, the new sash window in the flank elevation, and an internal window bringing borrowed light from the entrance staircase atrium.

Bathroom elevation drawing showing vanity, mirror, WC, storage and shower layout for the Oakfield Road refurbishment.

Ensuite Bathroom

The en-suite bathroom is a light filled space with marble tiles, marble terrazzo floor and vanity basin, contrasted with a pale wood Japanese bath and matching vanity unit joinery.

Shower Room

The shower room in contrast embraces the lack of natural light through the use of dark, rustic quarry tiles, a coloured concrete basin and black WC pan.

Shower room plan drawing showing layout of shower, basin and WC for the Oakfield Road refurbishment

Custom joinery design

The project includes custom fitted joinery throughout the apartment, including the kitchen, wardrobes, utility room and study joinery pictured here.

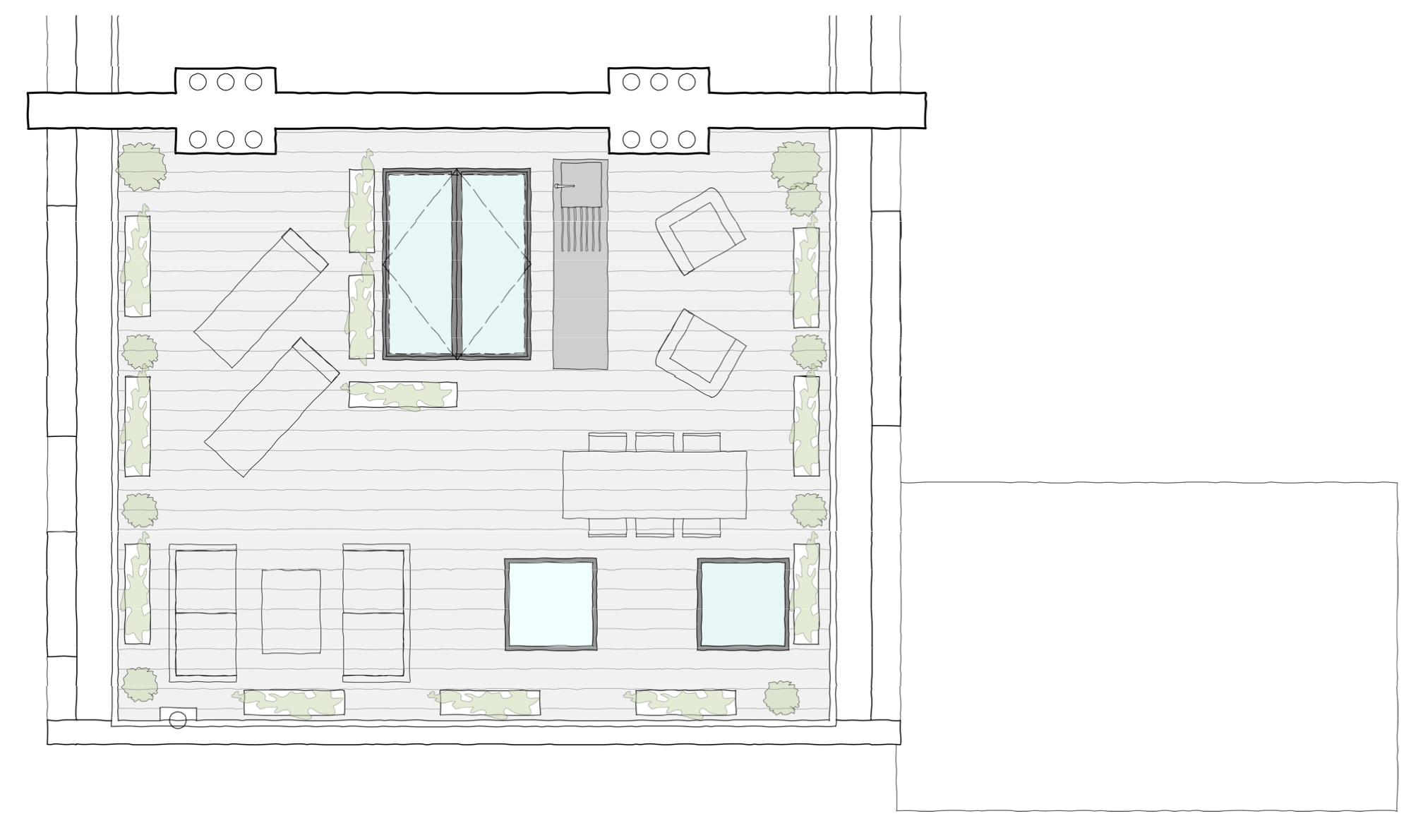
Accessing the roof terrace through a custom opening rooflight

Access to the reconfigured roof terrace is via a new staircase in the kitchen/dining room through an opening glass box rooflight. The roof terrace design incorporates flat rooflights sitting flush with the roof decking in order to create a simple canvas for the clients plants to be arranged around as well as a backdrop to the dramatic views across London. 

We decided to embark on an extensive amalgamation and renovation journey. Haines Phillips really understood our brief and obsessed about volumes, design details and symmetry, all of which helped to cement our confidence that we had appointed the right architects. By the end of the project, they knew the answers to questions even before we had had the time to articulate them ourselves.

Erik Zambon, Client

Overseeing the construction and finishing of the project

We have overseen the detailed design, specification, procurement and construction stages of the project.

Our services included procurement of the main contractor and their joinery specialist and subsequently overseeing the construction and finishing of the project. The construction process involved detailed discussions and refinement of the design of the fitted joinery, internal doors and staircase with the contractors specialist sub-contractors.

The detailed coordination with the contractor of all of the various specialist trades and suppliers has been key in order to realise the original design intent.

Steel partition framing during construction at the Oakfield Road refurbishment in Crouch End
Stair atrium under construction with roof opening and natural light at the Oakfield Road refurbishment in Crouch End
New structural opening formed in a brick wall during the Oakfield Road refurbishment in Crouch End
Roof structure and steel framing under construction within the Oakfield Road refurbishment in Crouch End
Upper level under construction with exposed brick walls and roof structure at the Oakfield Road project

Location

The development is located in Crouch End, London.