Guilford Street, Bloomsbury
Mixed use refurbishment and extension development of two maisonette apartments around a ground floor commercial unit.
Location
London Brough of Camden, WC1
Status
Completed
Use
Residential, Commercial
Client
Euston Trust Limited
Contractor
Maximising the value and potential of a central London building
Haines Phillips Architects were appointed to prepare proposals for development of the site, a mid terrace property on Guilford Street with side entrances on the flank and rear elevations on Brownlow Mews.
The existing building in the Bloomsbury Conservation Area probably dates from the early 19th century and was built originally as a single family dwelling but was subsequently altered and most recently contained a cafe on the ground floor and substandard dwelling space on the basement and upper floors.
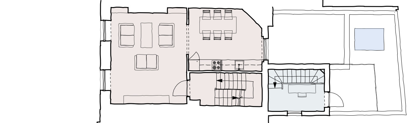
Our design to maximise the value of the property was for the conversion and rear extension of the existing building to convert it in to two maisonettes, with a new office space at ground floor level.
Interestingly under the site runs the Post Office Mail Tunnel. One of the considerations during the design and construction process has been to ensure that the structural integrity and amenity not just of the surrounding buildings, but also the tunnel below.
High quality new residential apartments
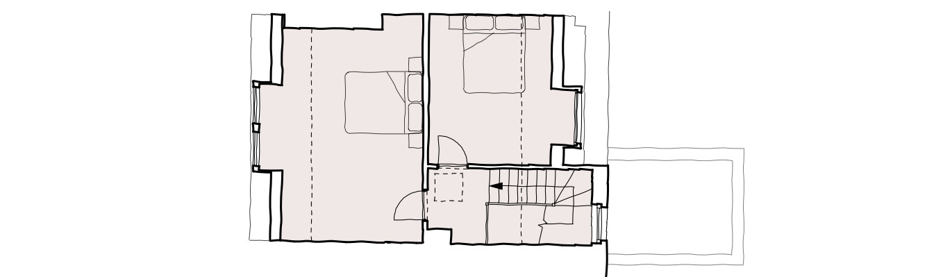
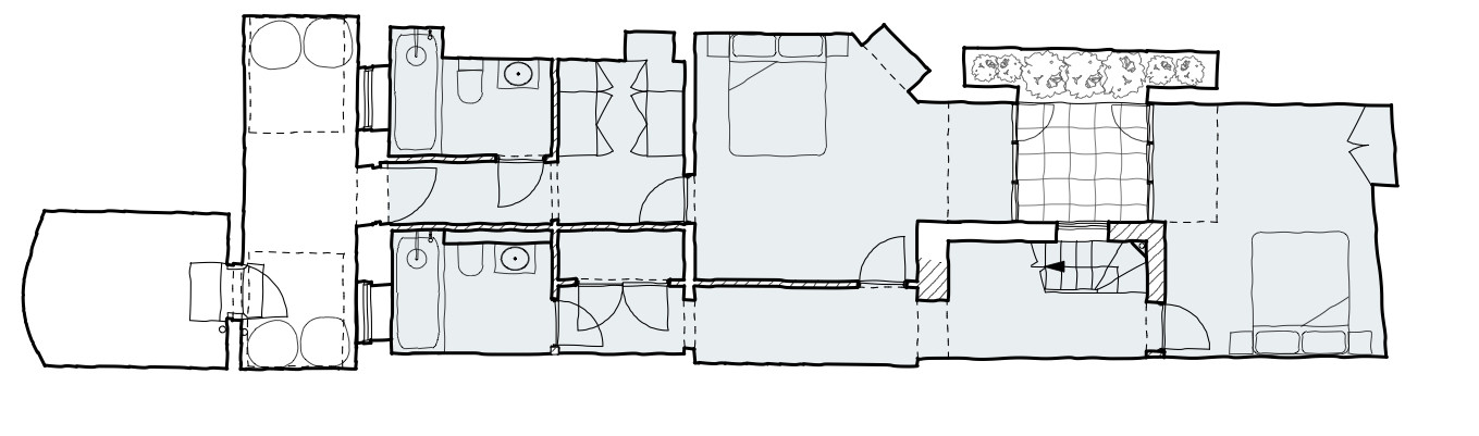
Flat One is a three bed unit on the upper floors, and the Flat Two a two bed unit on the lower floors.
The basement was extended to the rear of the site, which includes forming a new patio for Flat Two to bring natural light in to the basement living accommodation via new double glazed, double height bay windows.
Closet wing extensions at first and second floors provide an access route to a first floor terrace for flat 2 and for a new bathroom for flat 1.
Careful consideration has been given to the creation of high quality accommodation using the existing building envelope and new extensions whilst minimizing impact on adjoining properties through the form of the extensions, placement of fenestration and choice of external materials.
Location
The development is located in Bloomsbury, Borough of Camden, Central London.