Holland Street Extension and Refurbishment, Kensington and Chelsea
Basement level extension and internal alterations to a Grade II listed family home.
Location
Notting Hill, London W8
Status
Completed
Use
Residential
Client
Private
Interior Designer
Main Contractor




Careful design to subtly alter and improve the listed building
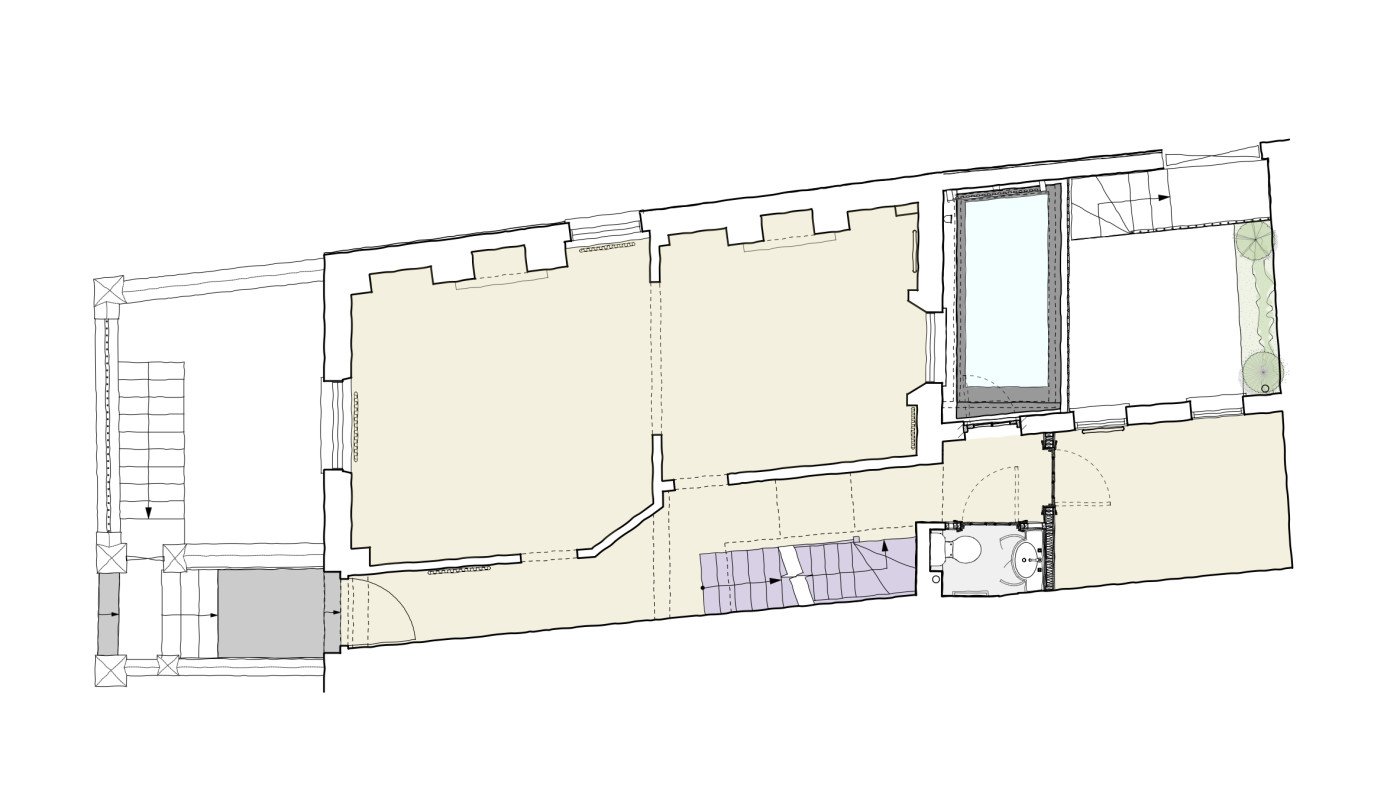
This project comprises sensitive alterations and extensions to a Grade II listed family home in the Kensington Conservation Area.
Our work involved careful historic research and design in order to subtly alter and extend the house in key locations to better suit contemporary living.
The existing principal rooms in the basement suffered from being dark and confined and the access to the rear garden patio offered very little light and outlook.


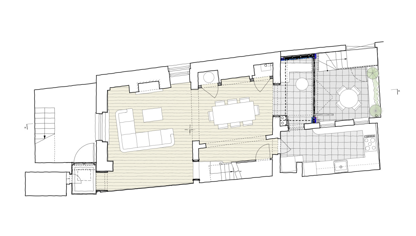
These works, alongside alterations and refurbishment of the ground floor reception rooms and the bedrooms and bathrooms on the upper floors has preserved and enhanced the quality and usability of the house well into the future.
We obtained planning permission and listed building consent following a detailed submission and extensive negotiation with RBKC regarding the design of the rear extension and replacement of the external front steps.


Our work included the detailed design and specification of the interior joinery
and other elements and we worked closely with an interior designer engaged by the client to co-ordinate the choice and specification of all finishes and fixtures.
The building work was carried out under two separate contracts: one for the renewal of the roof to the main house and the second for the extension and refurbishment of the property during which we liaised closely with the contractor.


Client Testimonial Excerpt
“The lower ground floor has been completely transformed, as has so much of the rest of the house. The glass terrace, the new combined laundry room/shower room on the landing, and the family bath on the top floor – all were brilliant ideas and seem perfectly executed.“

– Private Client