Start a project

Kensington Church Street Extension and Refurbishment, Kensington and Chelsea

Refurbishment and extension of maisonette flat.

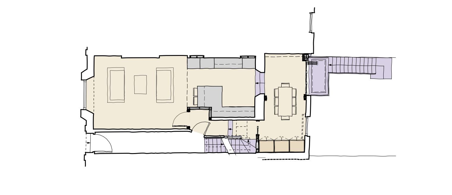
Adding floor area and reorganising the flat

The existing flat was arranged over the ground and lower ground floors, accessed from a communal entrance hall and with sole use of the rear garden.

The element of our design proposal to achieve this was to insert a two storey rear infill extension to increase floor area and to improve the access and connection to the rear garden.

The living, kitchen and dining spaces were moved to the ground floor to take advantage of the taller floor to ceiling heights and to make best use of the available light.

The lower ground floor spaces were reorganised to include two good size double bedrooms, two bathrooms, ample storage space and a study area facing out on to the rear garden patio.

architectural drawings

Location

The development is located in Kensington & Chelsea, West London.