Langham Road Flat Conversions
Conversion of first floor flat and roof space to create 2 one bed flats.
Location
Wood Green, Haringey N15
Status
Completed
Use
Residential
Client
Private
Maximising value through clever design
Haines Phillips Architects were appointed to prepare feasibility and detailed designs to maximize the development potential of an existing first floor flat with a substantial loft space by converting it in to two self-contained one bed flats.
The existing property was a typical 1930s two storey terraced house that had been subdivided in the 1980s in to 4 self-contained flats.
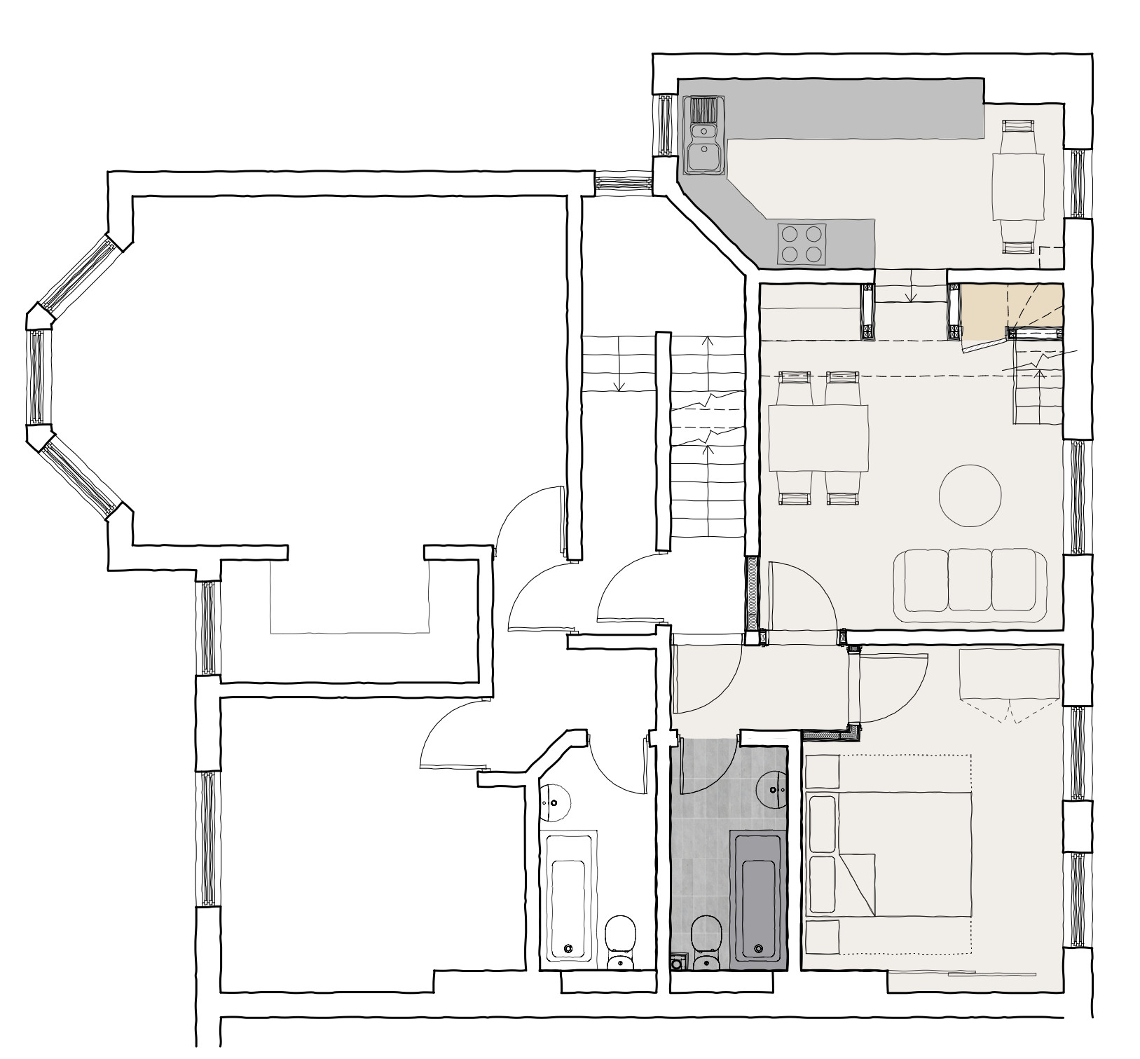
Our design carefully split the first floor flat and second floor loft space in to two separate one bed units, a split level flat on the first floor and a second flat in the roofspace.
Our work included feasibility studies, planning applications, detailed design and specification of the conversion works.
The detailed design included careful consideration of the construction process in order to carry out the works whilst the lower level flats remained in occupation and to provide the necessary fire and acoustic separation.
Split Level First Floor Flat
The internal layout of the first floor flat was subtly altered to create a new entrance hall and a new mezzanine study space was created over the kitchen and living areas by incorporating part of the loft space over.
By adding a rooflight in the rear roof slope over the mezzanine area, the double height living space is flooded with natural light and gives a contemporary feel within the period property.
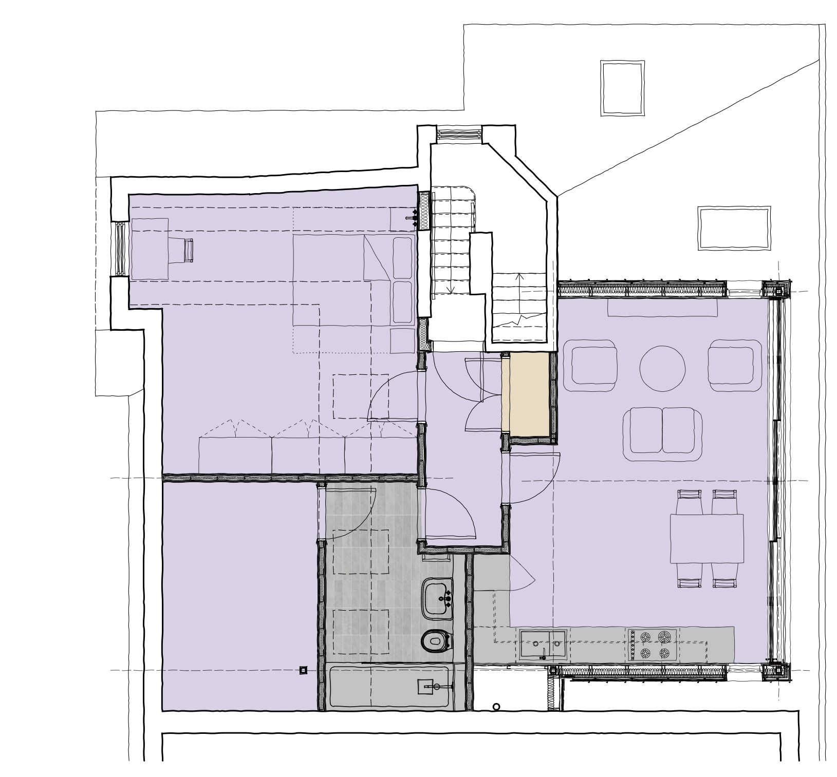
Roofspace Level Flat
A second one bed flat has been created in the roofspace. The existing staircase up to the loft space was altered and a separate entrance introduced.
The living, kitchen and dining spaces for the flat were created in a new zinc clad dormer extension to the rear roof slope with a full width sliding glass screen wall.
This space is full of natural light and provides uninterrupted views across the rear gardens and park beyond.
New bedroom, shower room and storage spaces are provided in the front roof slope in to which three new rooflights have been added to provide natural light.
Location
The development is located in Wood Green, in the London Borough of Haringey, North London.