Upper Grosvenor Street Internal Remodelling and Refurbishment, Mayfair
Two bedroom Mayfair apartment fitout and refurbishment project.
Location
Westminster, London W1K
Status
Completed
Use
Residential, Architectural Interiors
Client
Private
 
    
       
    
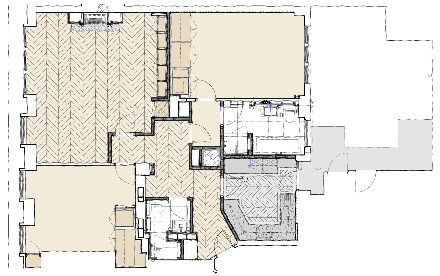
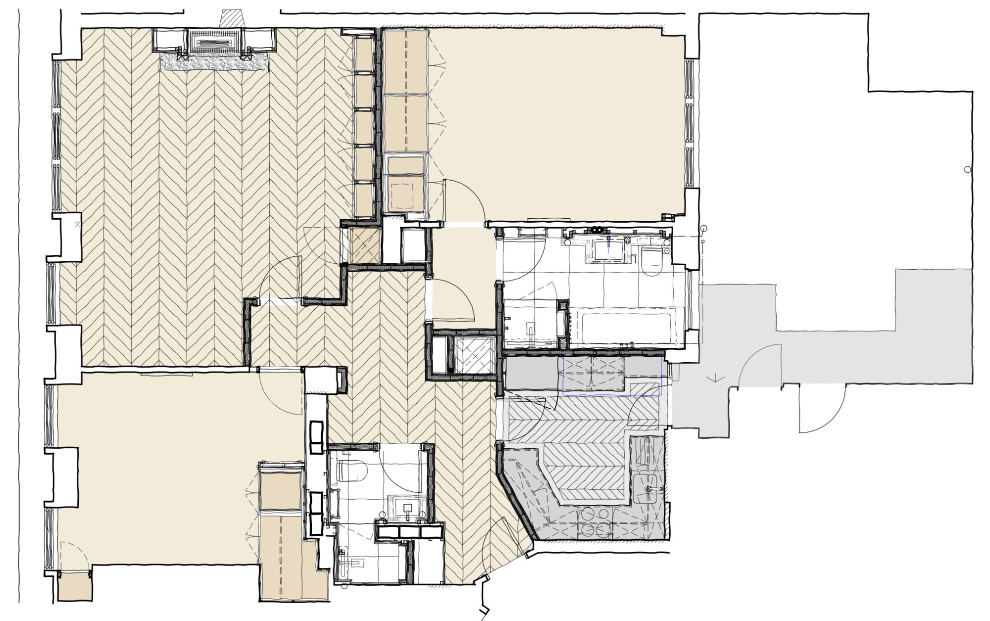
      Complete stripping and creation of a new layout
The existing flat was within a prestigious Mayfair mansion block but had a dated, cramped layout and interior fitout.
Our project entailed the complete demolition and stripping out of the internal partitions and fabric and the reconstruction of the interior to a new layout.
Our design required carefully working with the constraints of existing services and structural elements within the flat to provide two double bedrooms, an en-suite bathroom, shower room, kitchen and a generously proportioned reception and dining room.
Our services included outline design, an application to the Grosvenor Estates for Landlord approvals, detailed design, interior design, tender action and administration of the building contract through to completion of the works.
 
    
      Careful integration of mechanical, electrical and audio visual installations
The extensive mechanical, electrical and audio-visual installations are carefully integrated within our design in a discrete and sensitive way, by, for example, incorporating these services within the joinery design. This included existing communal services running through the flat that were discovered during the demolition and strip out phases.
The fit-out and selection of finishes was in response to our client’s desire for a contemporary interpretation of an Art-Deco style that complements the original mansion block building, including the common parts from which the flat is accessed.
 
    
       
    
       
    
       
    
       
    
       
    
       
    
       
    
       
    
      