Mount Avenue Extension and Alterations, Ealing
Contemporary extensions and alterations to a detached Victorian house.
Location
Ealing, London W5
Status
Detailed design
Use
Residential
Client
Private

Adapting and improving the house for contemporary living
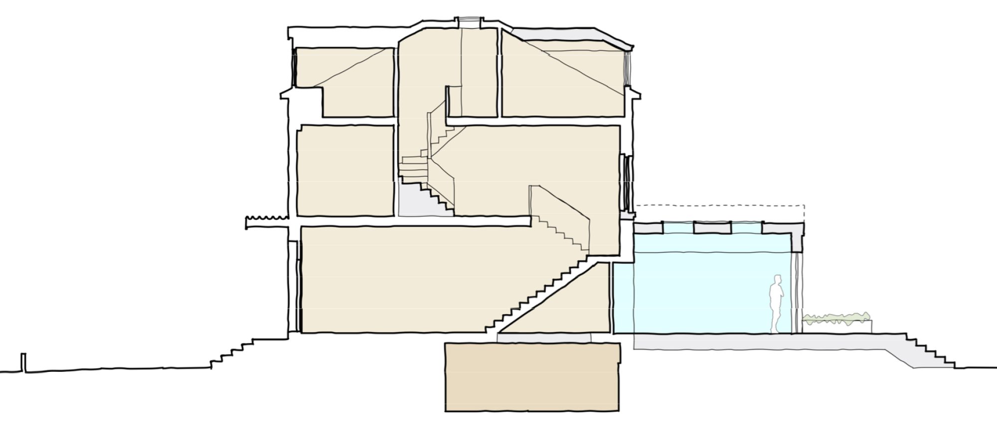
Our clients approached having purchased this four storey detached Victorian house in the Montpelier Park Conservation Area. The house is locally listed and part of a grand group of similar houses, each with decorative front elevations and large rear gardens.
The house included an unsympathetic non-original rear extension consisting of a large uPVC glass lantern within a flat roof with a fully glazed wall facing out on to the rear garden.
Our design proposals were to create new spaces for home working, improving the family kitchen/living/dining spaces and improving the bedroom spaces on the upper floors.
Our services included the initial concept feasibility studies, planning application and technical design for pricing and construction.

