Start a project

Mount View Road House Refurbishment, Crouch End

Refurbishment of family house including a dramatic double height kitchen/dining area.

Adding light and drama to the key living spaces

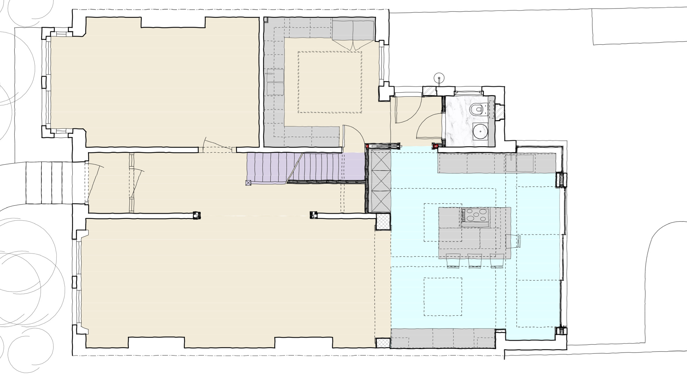
Our clients approached us to prepare ideas to improve the quality of light and usability of the key living spaces. The existing house included a dark, cellular layout and a central rear projection which created low ceilings to the kitchen and dining areas, and an unsatisfactory feel to the key living spaces and connection to the rear garden.

Our proposals included a key design idea which was to partly hollow out the closet wing above the kitchen and to reconfigure the infill extension around the rear projection in order to vastly increase the quality of light and space. We also opened up the reception room to the dining area and to the entrance hallway with large openings in the walls.

An automatic fire curtain in the hallway wall allowed us to create this feeling of space whilst also complying with the Building Regulations for fire safety.

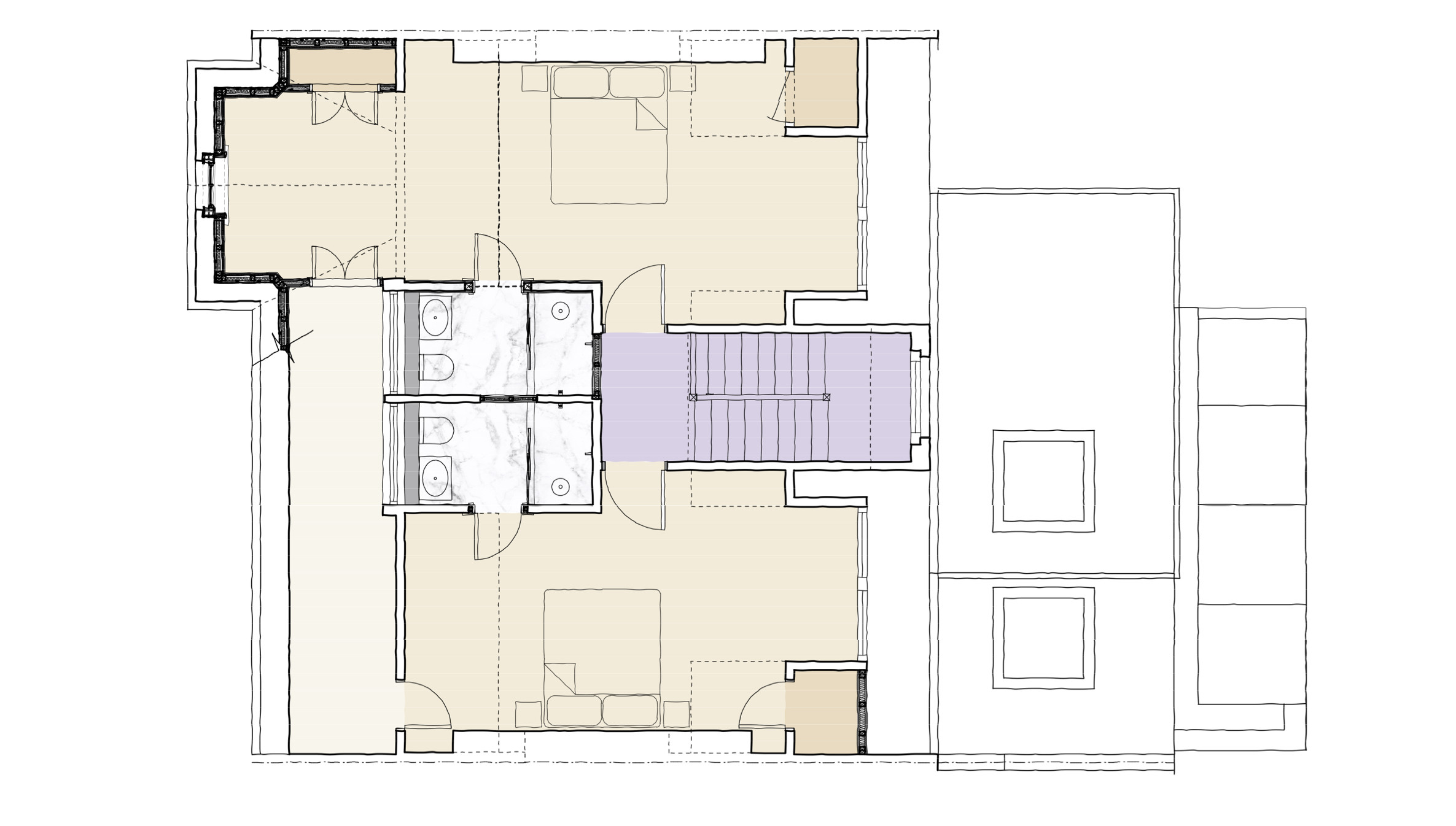
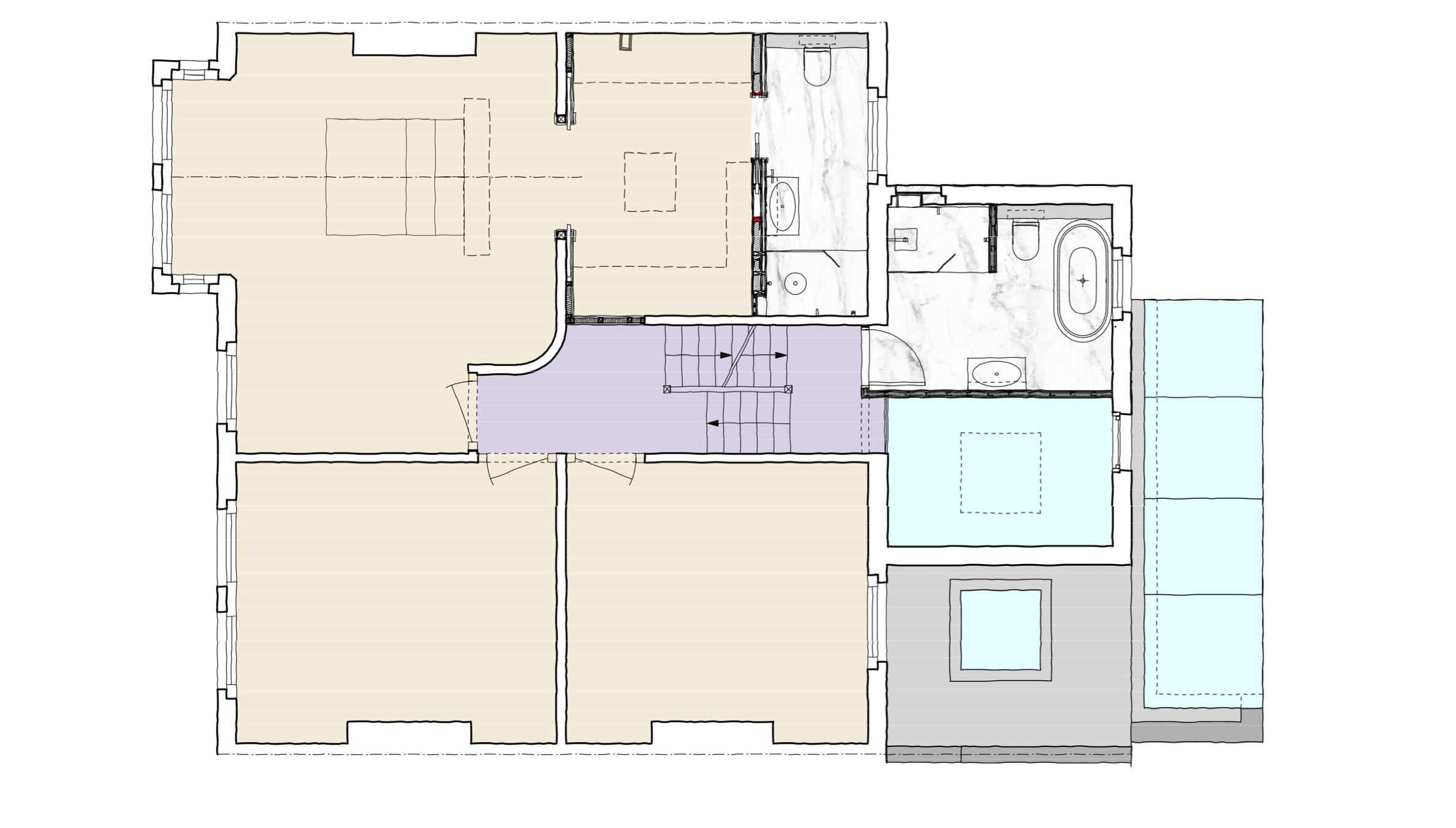
The upper bedroom floors were reorganised and refurbished to create generous bedroom, bathroom and study spaces.

We worked closely with our clients on all aspects of the design, including the technical design and specification in order to maximise the potential of their limited construction budget.

architectural drawings

Location

The development is located in Crouch End, North London.