Ship Street, The Lanes, Brighton
Mixed use development to create a restaurant unit with 3 flats above in the historic Brighton Lanes quarter.
Location
Brighton, Sussex BN1
Status
Completed
Use
Residential & Commercial
Client
Private
Revitalising a dilapidated but prominent building
Our Ship Street project is a mixed use development on a corner site in Brighton’s historic and vibrant Lanes quarter, just a couple of hundred meters from the seafront.
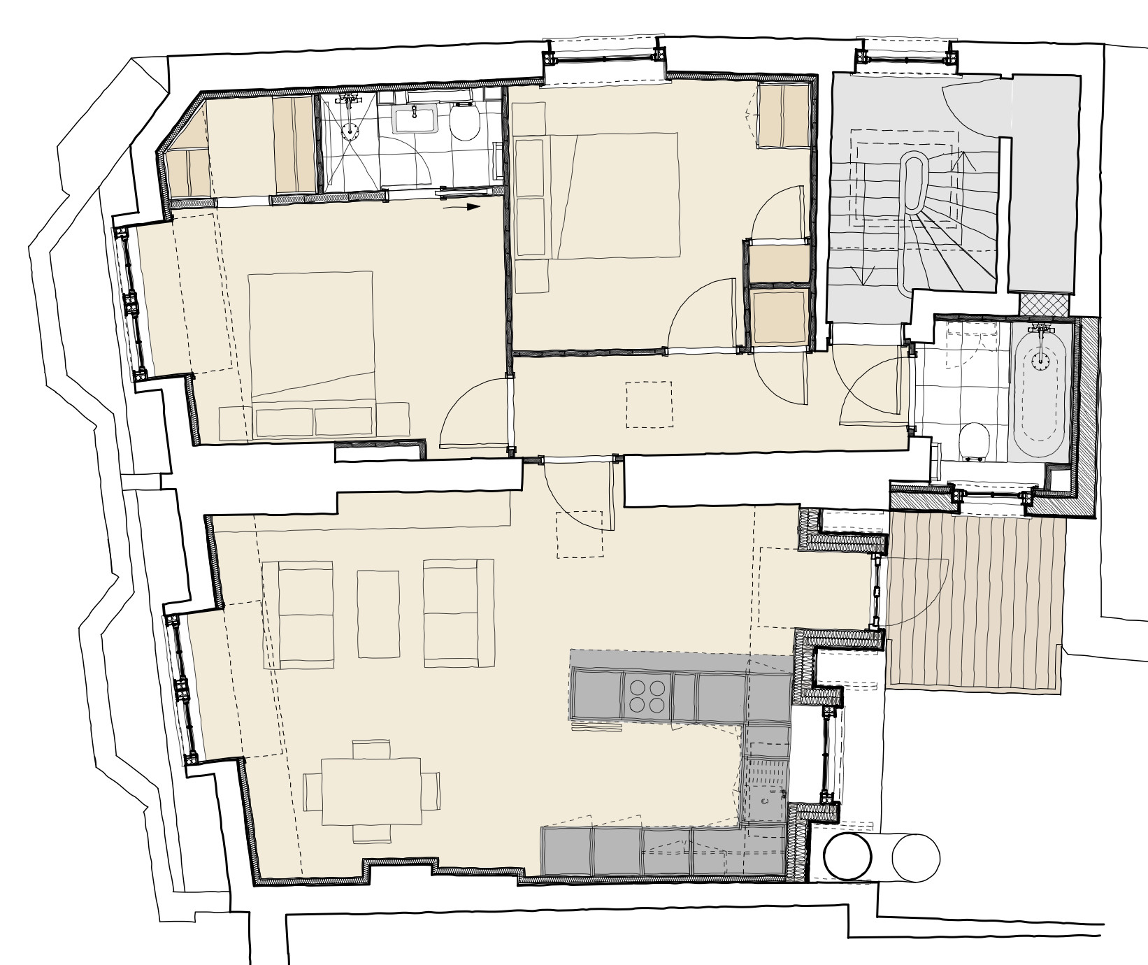
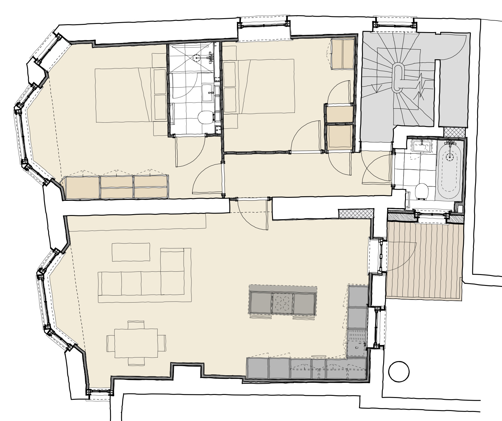
We refurbished, reorganised and extended a dilapidated four story building to create a restaurant unit on the ground and basement floors with three high quality residential apartments on the upper floors above.
Full design, detailing and specification
Through careful consultation with the client, we prepared the design of all elements including bathrooms, joinery, finishes and colour schemes.
Working with a modest budget, the details and finishes for each flat create a contemporary, high quality design that makes subtle references to period details appropriate to the original building.
All new and upgraded building elements incorporate high levels of thermal efficiency and insulation and sound separation between the restaurant unit and apartments.
Location
The development is located in the South East of England in Brighton, Sussex.