Start a project

South Terrace Subterranean Extension and Refurbishment, Kensington and Chelsea

Modification and extension of a Grade II Listed family home including a subterranean extension below the rear garden.

Working with the historic fabric and creating additional contemporary living spaces

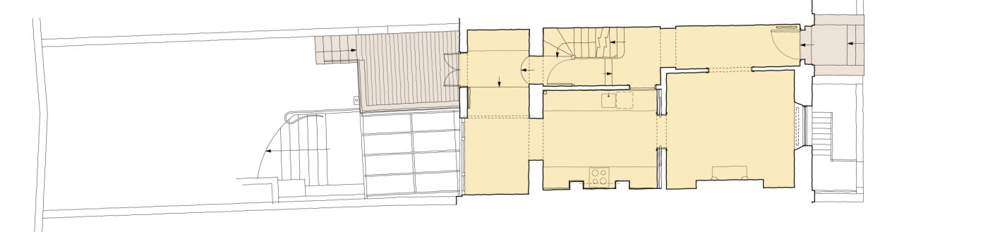
This Grade II Listed family home forms part of a listed Georgian terrace and is laid out on five floors.

Internal modification and extension works were undertaken in the past, introducing some modern interiors and architectural elements to the historic Georgian building fabric.

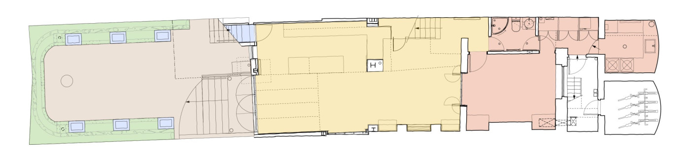
The clients design brief was to maximise the potential living spaces within and below the building and rear garden. Our design includes a subterranean extension below the rear garden, involving the sensitive insertion of a basement family room, home cinema and wine cellar with a discrete link to the house.

A new basement extension below the rear garden

The rear garden was excavated to allow the construction of the basement, and re-instated with new contemporary landscaping, integrating and concealing the various services required for the basement including six structural glass rooflights that provide natural light to the basement below.

The lower ground floor of the property was fully refurbished and a new kitchen installed to serve the family dining area, with the main kitchen and formal dining room being on the ground floor of the house.

Other refurbishment and upgrading works were undertaken throughout the house to renew existing bathrooms, windows and finishes and fittings.

Reconfigured formal and informal family living spaces

The rear garden was excavated to allow the construction of the basement, and re-instated with new contemporary landscaping, integrating and concealing the various services required for the basement including six structural glass rooflights that provide natural light to the basement below.

The lower ground floor of the property was fully refurbished and a new kitchen installed to serve the family dining area, with the main kitchen and formal dining room being on the ground floor of the house.

ARCHITECTURAL PLANS

Other refurbishment and upgrading works were undertaken throughout the house to renew existing bathrooms, windows and finishes and fittings.

Location

The development is located in Kensington and Chelsea, West London.