Sussex Road Refurbishment and Extension, New Malden
Full refurbishment and extensions to transform Edwardian family house.
Location
New Malden, London KT3
Status
Detailed Design
Use
Residential
Client
Private
Structural Engineer
Benton Setterfield Partnership
Reorganizing and maximising the potential of the house
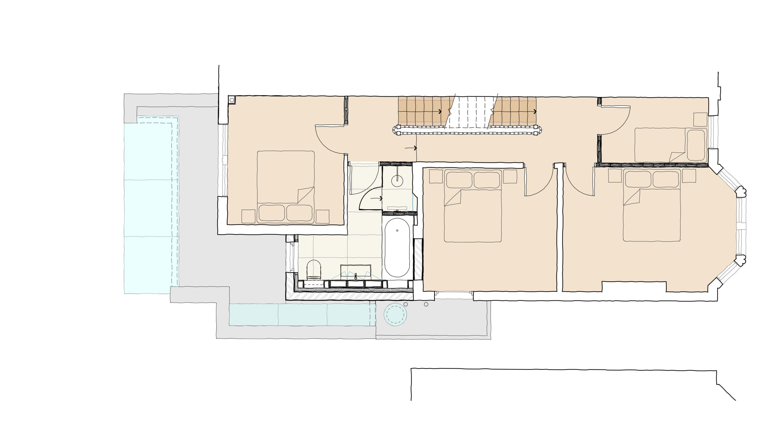
Haines Phillips were approached to prepare designs to reorganize and maximise the floor area of the clients Edwardian two-storey semi-detached house in New Malden, south London.
The existing house was arranged with an awkward cellular arrangement of the family spaces on the ground floor, an unsatisfactory connection with the rear garden, and insufficient bedroom and bathroom spaces for the clients growing family.
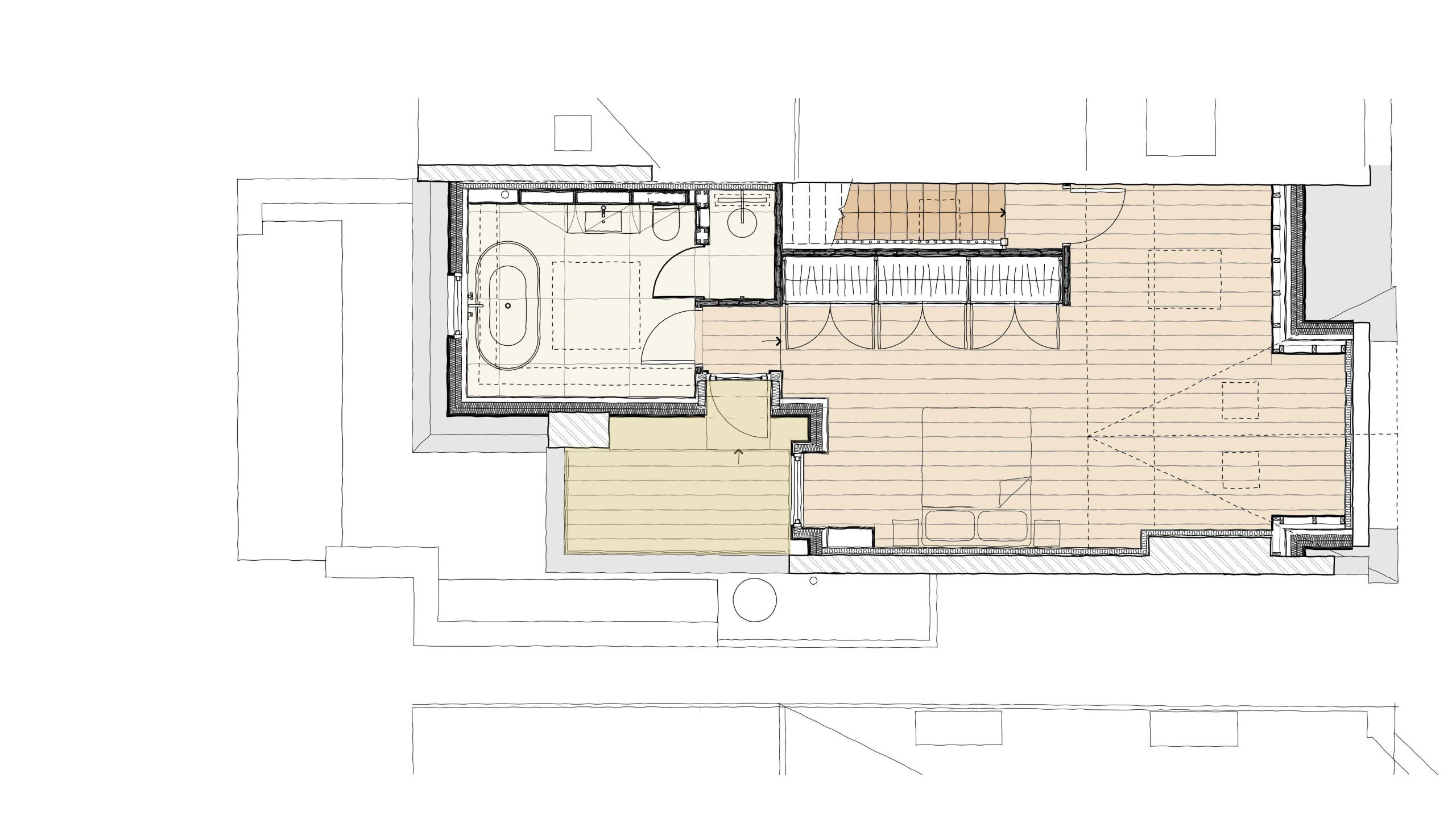
Our designs proposals were for extensive internal alterations including a new position and arrangement of the internal staircase in order to unlock an improved circulation route within the house for the family spaces and to allow access up to the second floor master bedroom suite. We also proposed rear, side and roof extensions for a large kitchen and dining space on the ground floor, and additional bedroom and bathroom.
The symmetrical balance of the semi-detached houses would be restored by introducing a hip to gable roof extension. This extension plus two rear dormers allowed us to create new roof level accommodation. A first floor level side extension creates an enlarged family bathroom space and a roof level terrace over.
The rear and side extensions include a structural glass box and rooflights to create a new, larger, light filled family kitchen and dining area and an improved connection between the house and garden.
Our services included concept and feasibility design, planning and technical design for pricing and construction.