Start a project

The Sidings, Station Road, Kingston Upon Thames

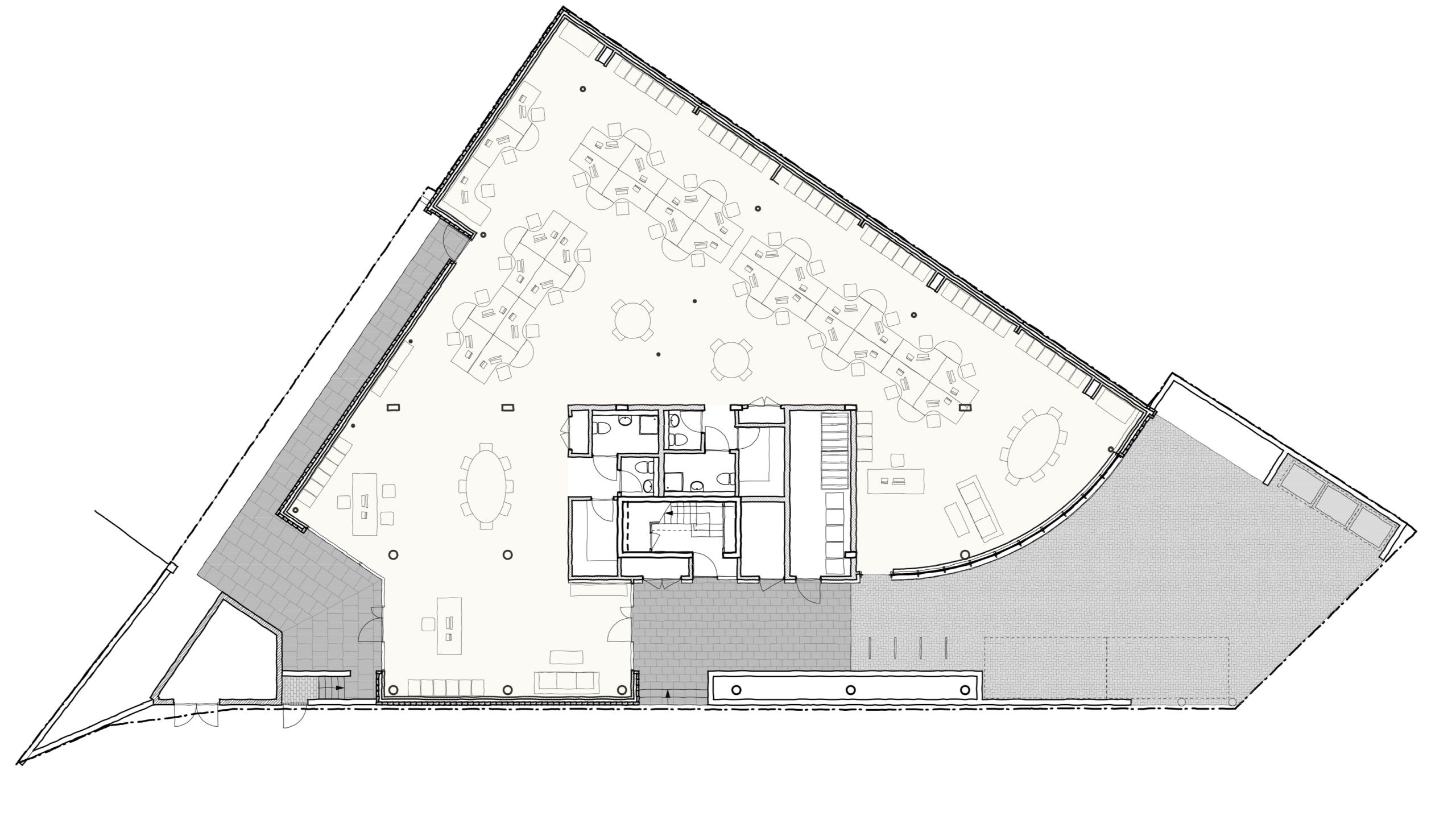
Mixed use development with residential apartments above office space on a tricky urban site.

Unlocking the development potential of a tricky site

Our Station Road project is a mixed use development of ground floor office accommodation with eight residential units above, on a triangular site adjacent to Hampton Wick rail station.

Haines Phillips obtained an advantageous planning consent on this site, winning an appeal for our client at Public Inquiry following protracted negotiations with the local authority.

Designed to maximise daylight and minimise acoustic issues

Our design tackled complex problems of acoustic and daylight/sunlight issues to provide a contemporary development of high quality apartments and office space on a difficult and unusual site. 

Location

The development is located in Kingston upon Thames, Surrey.