Start a project

Westbrook, Crouch End

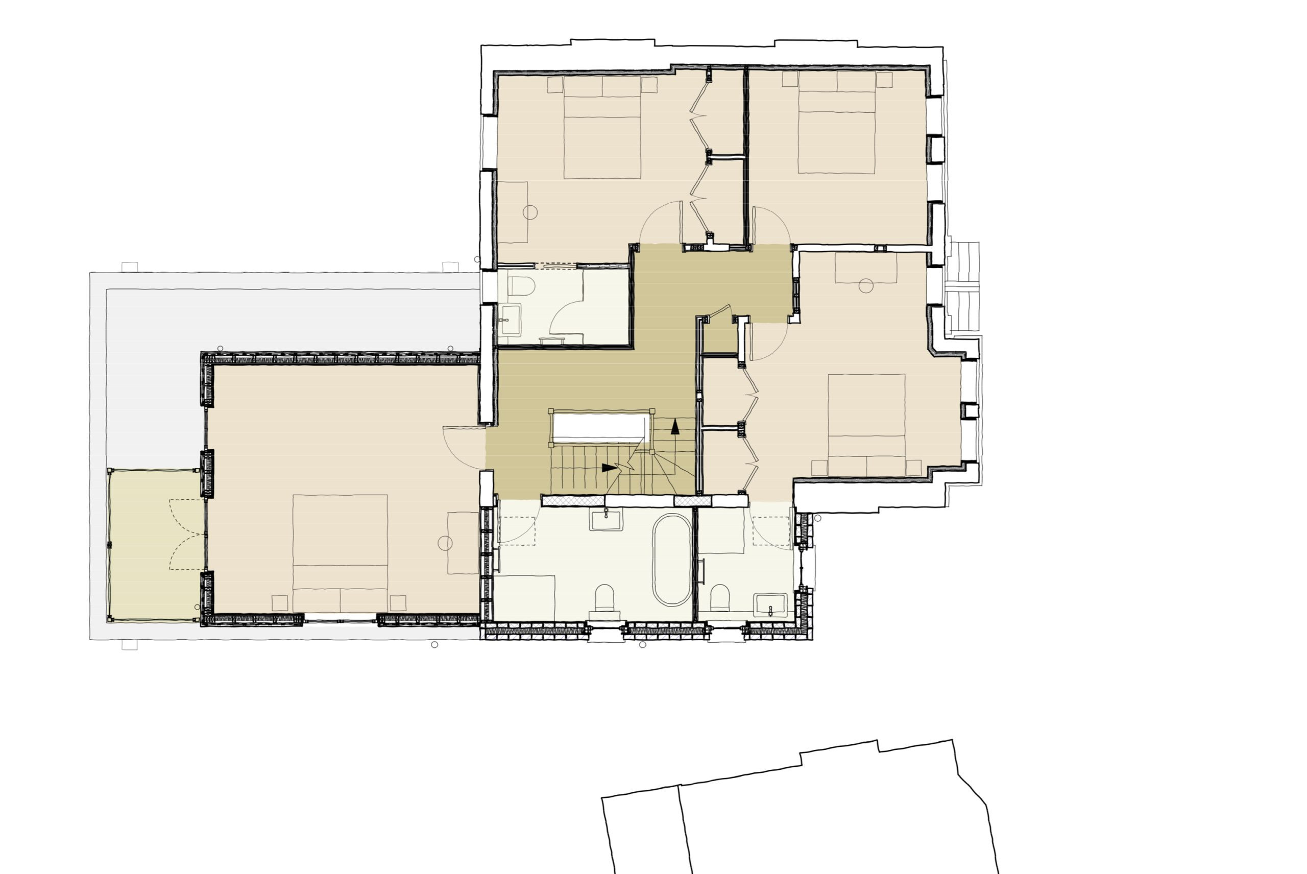
Large scale extensions and alterations to detached family home.

Expanding and enhancing the existing house

Our clients approached us having purchased a large, detached early 20th century family house in Crouch End, near Priory Park.

The house had a grand street frontage but had been altered internally a number of times, and also included an ugly non-original closet wing extension.

architectural drawings

Location

The development is located in Crouch End, North London.