Wilton Row, Belgravia
Substantial rebuilding and fitting out of Belgravia mews house to create a high-end market sale house.
Location
Westminster, London SW1X
Status
Completed
Use
Residential
Client
Treasury Invest Ltd
Staircase & Joinery
Tin Tab Ltd
Contractor
Velmead Contracts Ltd
Creating a light filled luxurious family home
This project comprised the substantial rebuilding and fitting out of a Belgravia mews house, including insertion of a new basement, to create a high-end contemporary house for sale.
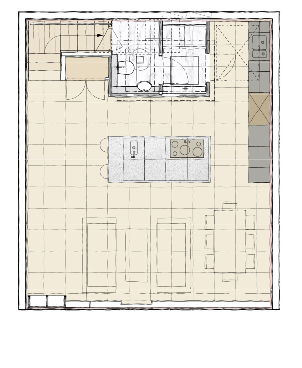
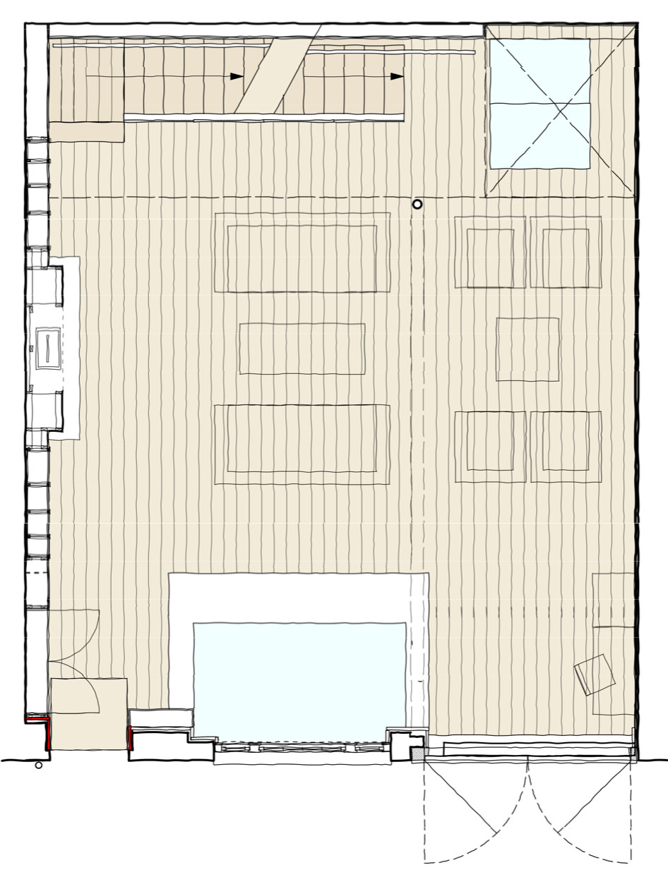
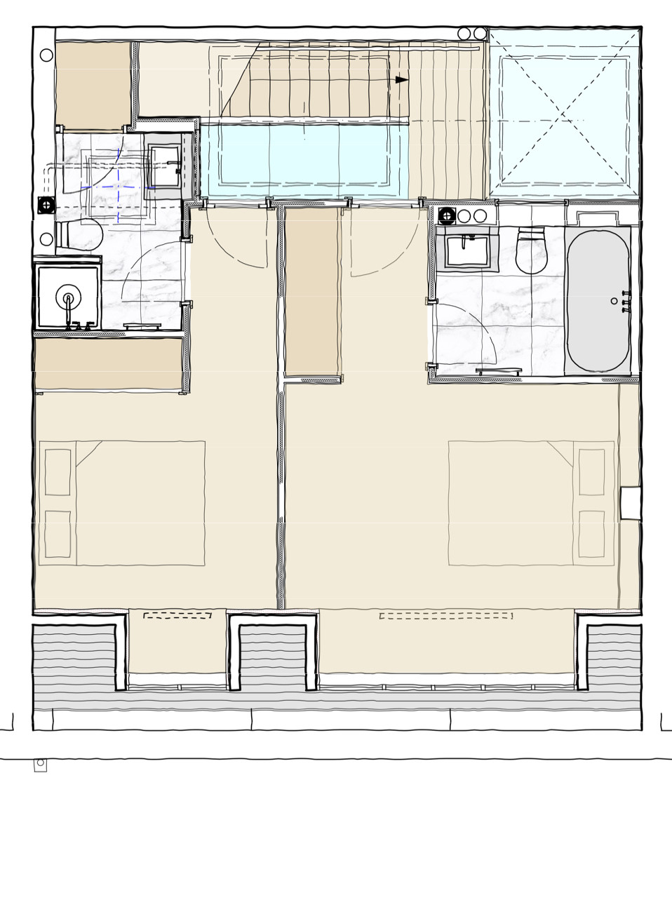
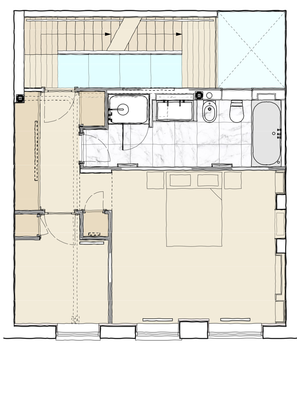
The house has only one external aspect, its front elevation. Key to the success of the design was the insertion of an open staircase along the rear wall with the stair acting as a light well, bringing light along the rear wall to all floors of the house, through large glazed openings in the roof above the stairwell, glass floor landings and an internal ‘atrium’.
Open plan ground floor living space facing the mews frontage
Rear of ground floor living space with staircase and atrium
Basement kitchen dining space with light from cutout in ground floor above
Our services included detailed design and specification of the architectural interiors