Start a project

From concept to completion

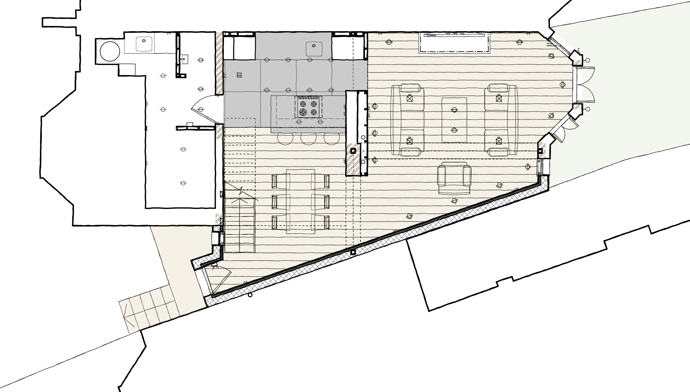
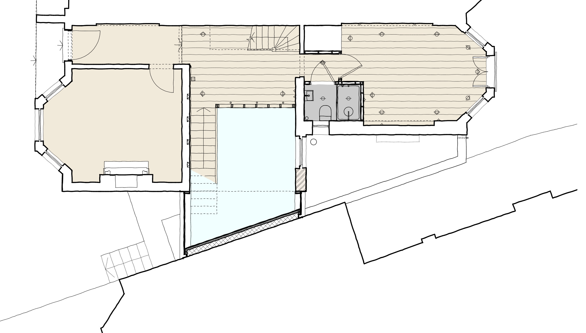
Our full architectural service follows the RIBA Plan of Work through every stage from initial concept and feasibility design through planning applications, technical design, and construction. This structured, end-to-end approach ensures clarity, full coordination with other consultants and specialists, and the best outcome across residential, commercial, and mixed-use projects.

Looking for a considered, end-to-end architectural service? Let’s discuss how we can support your project.

Procurement and construction

The procurement of a project and selecting a suitable contractor is key to a successful outcome. We can assist in this process, be that a competitive tender or negotiated route. In the construction stages of a project, we can lead the design and construction team through on-site delivery and completion. Our services include contract administration, dependable project management and client support, while offering continuity and creative insight in order to deal with site matters whilst monitoring quality, time and budget performance through to final handover and project close.

Speak to us about your project.

full architectural services
Explore more services
Haines Phillips really understood our brief and obsessed about volumes, design details and symmetry, all of which helped to cement our confidence that we had appointed the right architects.

Erik Zambon, Private Client for our Crouch End Maisonette project